返回頂部
會員登入
加入會員
加入LINE
Toggle navigation
關於天九
產品介紹
預鑄路緣石
舖面磚
植草磚
界石 路緣石 樹穴石
花台圍牆磚
擋土牆、階梯石(景觀生態)
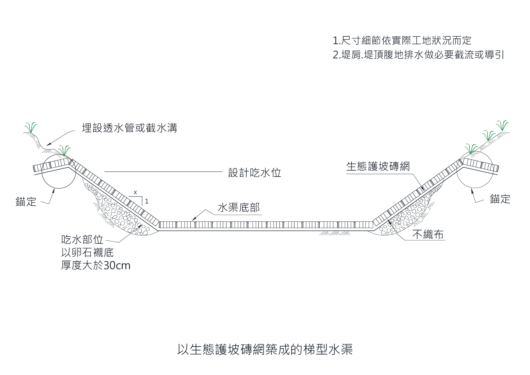
護坡磚(河川生態)
洗石子
混凝土管架,管墊,管路隔板
級配
最新消息
檔案下載
混凝土管架、管墊、管路隔板
環保舖面磚
環保彩晶植草磚系列
環保收邊界石路緣石樹穴石系列
花台圍牆磚系列
環保景觀生態擋土牆河川生態護坡磚系列
環保洗石子系列
相關問題
工程實績
服務據點
客戶服務
產品介紹
HOME
產品介紹
護坡磚 TFA-TFB彩晶盔甲石
護坡磚 TFA-TFB彩晶盔甲石
編號:
規格:
TFATFB
Tweet
護坡磚 TFA-TFB彩晶盔甲石
單磚圖檔:
護坡磚 TFA-TFB彩晶盔甲石
組合圖檔: